شقة للبيع في شارع المنار 4, حي المنار, مدينة جدة, منطقة مكة المكرمة


شقة للبيع
450,000
شقق تمليك بجوده عاليه في مواقع مميزه بجده 3 غرف 4 غرف 5 غرف 6 غرف ملاحق روف • مكتب مكناز العقاري الموثوق… حلول سريعة ونتائج مضمونة. • نحقق لك أفضل اختيار بين العقارات. • عقارات ذات جوده عاليه في مواقع مميزه بجده . • نوفر لك الوقت… ونقدّم لك أفضل العروض العقارية . • للتواصل : ـــــــــــــــــــــــــــــــــــــ
التفاصيل
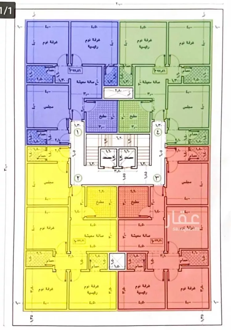
96م²
جديد
3
1
3
شرق
سكني
المميزات
الموقع
معلومات الإعلان
معلومات إضافية
تفاصيل الموقع
رقم الإعلان
6533997
رخصة الإعلان7100249055
المخطط و القطعة656 / ج / س - 46
رابط رخصة الإعلانالرابط
المساحة حسب الصك96.98
تاريخ نهاية الترخيص05/01/2027
مصدر الإعلانالهيئة العامة للعقار
تاريخ الإضافة05/01/2026
آخر تحديثقبل 8 دقائق
المشاهدات




