شقة للبيع في شارع الامير عبدالمجيد, حي الصواري, مدينة جدة, منطقة مكة المكرمة





شقة للبيع
630,000
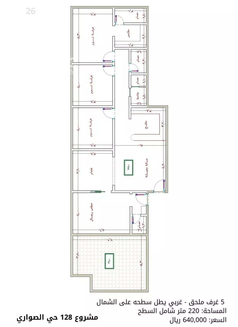
*اسعد الله أوقاتكم بكل نطرح لكم مشروعنا 《رقم128》الواقع بحي الصواري فرصتك الأمثل للسكن والاستثمار في حي الصواري ✨ لمن يبحث عن منزل الأحلام في موقع متميز؟ ولمن يطمح في استثمار عقاري ذكي ومربح؟ في حي الصواري يجمع بين الاثنين! 🏡 مميزات * موقع استراتيجي: في قلب حي الصواري، بالقرب من الخدمات والمرافق الحيوية. * تصميم عصري: شقق فاخرة بتصميمات معمارية حديثة تلبي جميع الأذواق. * جودة عالية: تشطيبات فاخرة واستخدام أجود المواد لضمان المتانة والاستدامة. * خيارات متنوعة: شقق بمساحات مختلفة تناسب جميع الاحتياجات والأسر. * عوائد استثمارية: فرصة استثمارية ممتازة بعوائد مجزية في موقع يشهد نموًا متزايدًا. * على شارعين ** 《مصعدين بالعمارة 》 《مواقف خاص لكل شقه 》 《خزان علوي وسفلي خاص لكل شقه 》《عداد كهرباء خاص لكل شقه 》 ملحق مشروع 《 رقم ١٢٨》 *يتكون من 4غرف ** حي الصواري، حيث الهدوء والجمال يلتقيان. 🌟 تصميم فريد: ملاحق عصرية بتشطيبات عالية الجودة تعكس ذوقك الرفيع. 🌟 مرونة في الاستخدام: مثالية لتكون استوديو فني، نادي رياضي منزلي، أو حتى مساحة خاصة للاسترخاء. 🌟 قيمة مضافة: استثمار يزيد من قيمة منزلك ويحسن من نمط حياتك _ _ملحق 5غرف مدخلين 4دورات مياه غرفة خادمة غرفة ملابس غرفة سائق المساحه 220م السعر640الف _ ___ مواقف خاص خزان علوي وسفلي خاص عداد الكهرباء خاص 《ضمانات المشروع 》 الضمانات 20 سنوات هيكل انشائي 25سنه قواطع وافياش 5سنوات كهرباء سباكه 1سنه اتحاد ملاك مجاناً تامين ضد العيوب الخفيه 10 سنوات الإستفسار يمكنكم التواصل 0562634346




